hello.
work.
contact.
luisa correa
hello.
work.
contact.
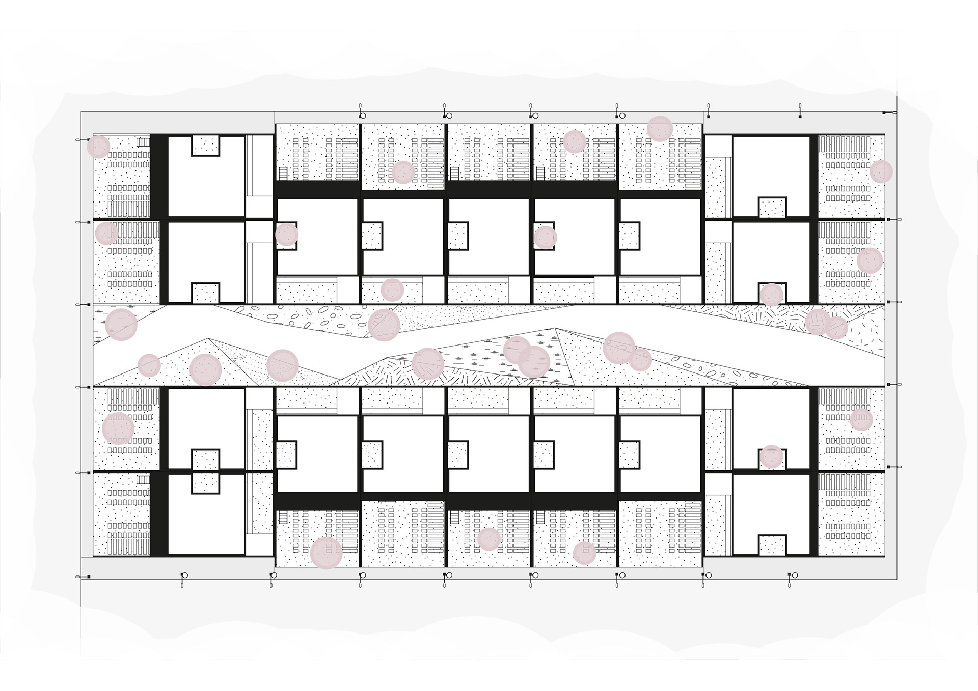
affordable housing in cabeceiras
Typology 1
Housing block floorplan
↑
Back to Top